Casa em Condomínio 3 Quartos Residencial Costa Leste 130m²
Residencial Costa Leste - Três Lagoas/Ms

Ninguém esquece esse imóvel! Ele já recebeu 118 visualizações.
Casa - Condomínio Costa Leste - Três Lagoas / MS
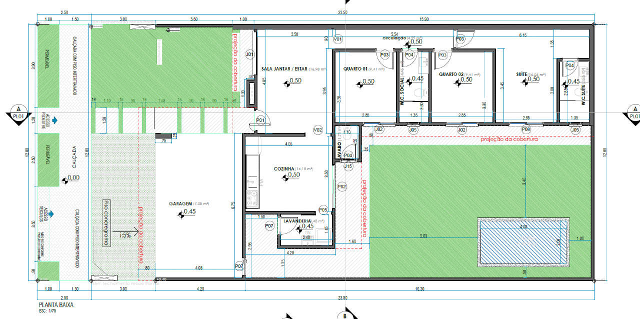
Casa em construção à venda no Condomínio Costa Leste, condomínio com infraestrutura completa. O imóvel contará com sala ampla integrada à cozinha gourmet com churrasqueira, proporcionando um ambiente moderno e funcional. Na área externa, terá piscina com lavabo de apoio. Serão 3 quartos, sendo 1 suíte com closet, além de banheiro social e lavanderia coberta. Uma ótima oportunidade para adquirir seu imóvel ainda em fase de construção.
COSTA LESTE LOTEAMENTO FECHADO
O Loteamento Fechado Costa Leste é um empreendimento em constante crescimento e vem se destacando na cidade.
Com uma localização estratégica, o condomínio situa-se próximo a pontos comerciais e diversas instituições de ensino superior, além de oferecer fácil acesso ao shopping e ao aeroporto, facilitando a mobilidade e conveniência para seus moradores.
O loteamento oferece uma excelente infraestrutura, que inclui segurança reforçada e uma gama de opções de lazer voltadas ao bem-estar dos seus habitantes como quadra poliesportivas, salão de festas, playground e quiosques. Além disso, é reconhecido por seu excelente custo-benefício, tornando-se uma escolha atraente para quem busca qualidade de vida aliada a acessibilidade e segurança em um local valorizado.
Quer saber um pouco mais sobre o condomínio?
Clique aqui e veja mais detalhes do COSTA LESTE LOTEAMENTO FECHADO.
Características
Área de Serviço
Cozinha com Armário
Banheiro com Armário
Banheiro com Box
Varanda
Lavabo
Closet
Despensa
Quintal
Gramado
Varanda Gourmet
Água Individual
Piscina
Lavanderia
Playground
Salão Festas
Salão Jogos
Portaria 24 horas
Segurança 24 horas
Quadra Esportiva
Espaço Gourmet
Área Gourmet
Móveis Planejados

















